Discover the charm of this spectacular luxury villa, located on a 912 m² plot, strategically situated just a short distance from the beautiful beaches and the center of Moraira. This property offers an unmatched living experience, combining modern design, comfort, and stunning sea views.
Villa Layout
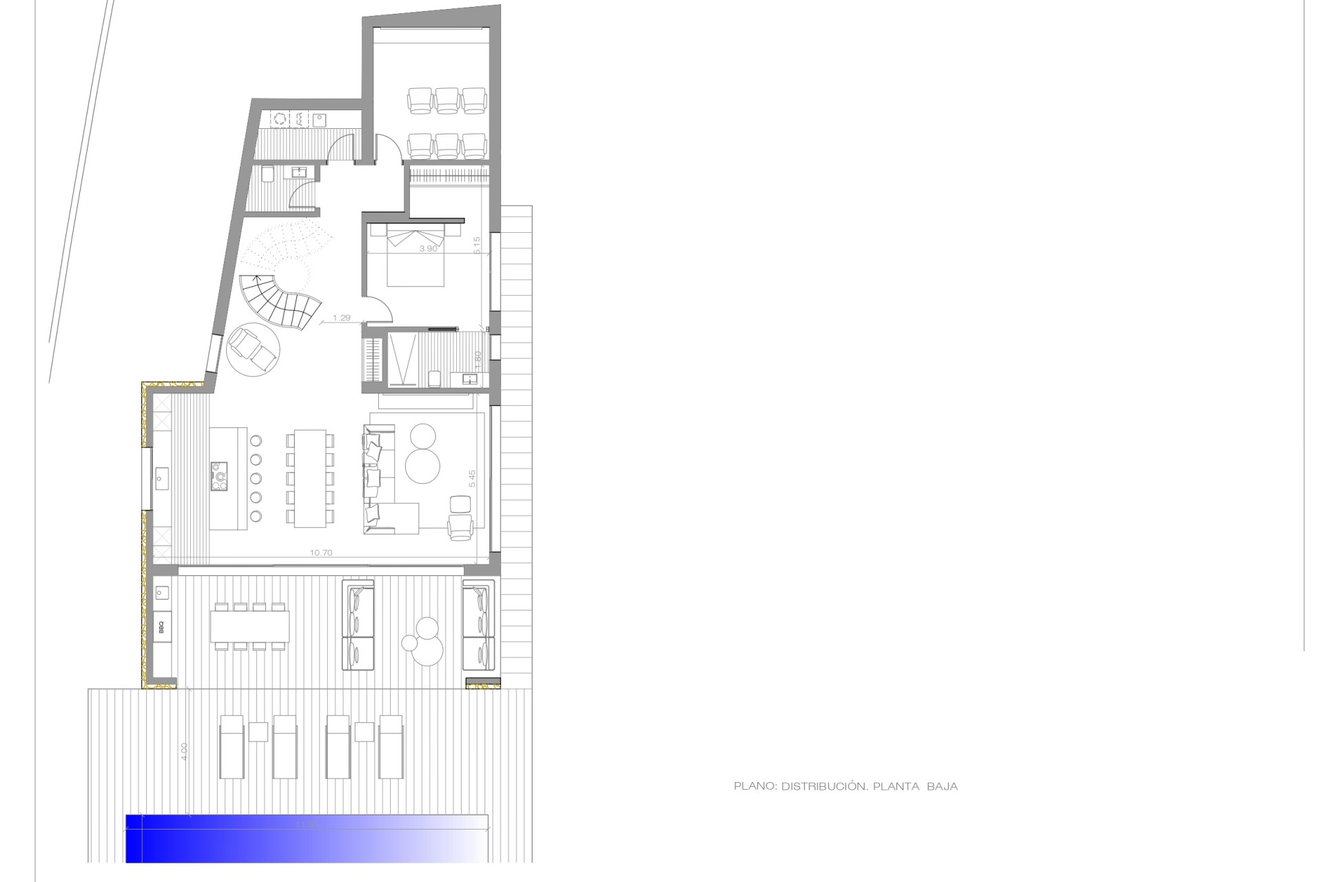
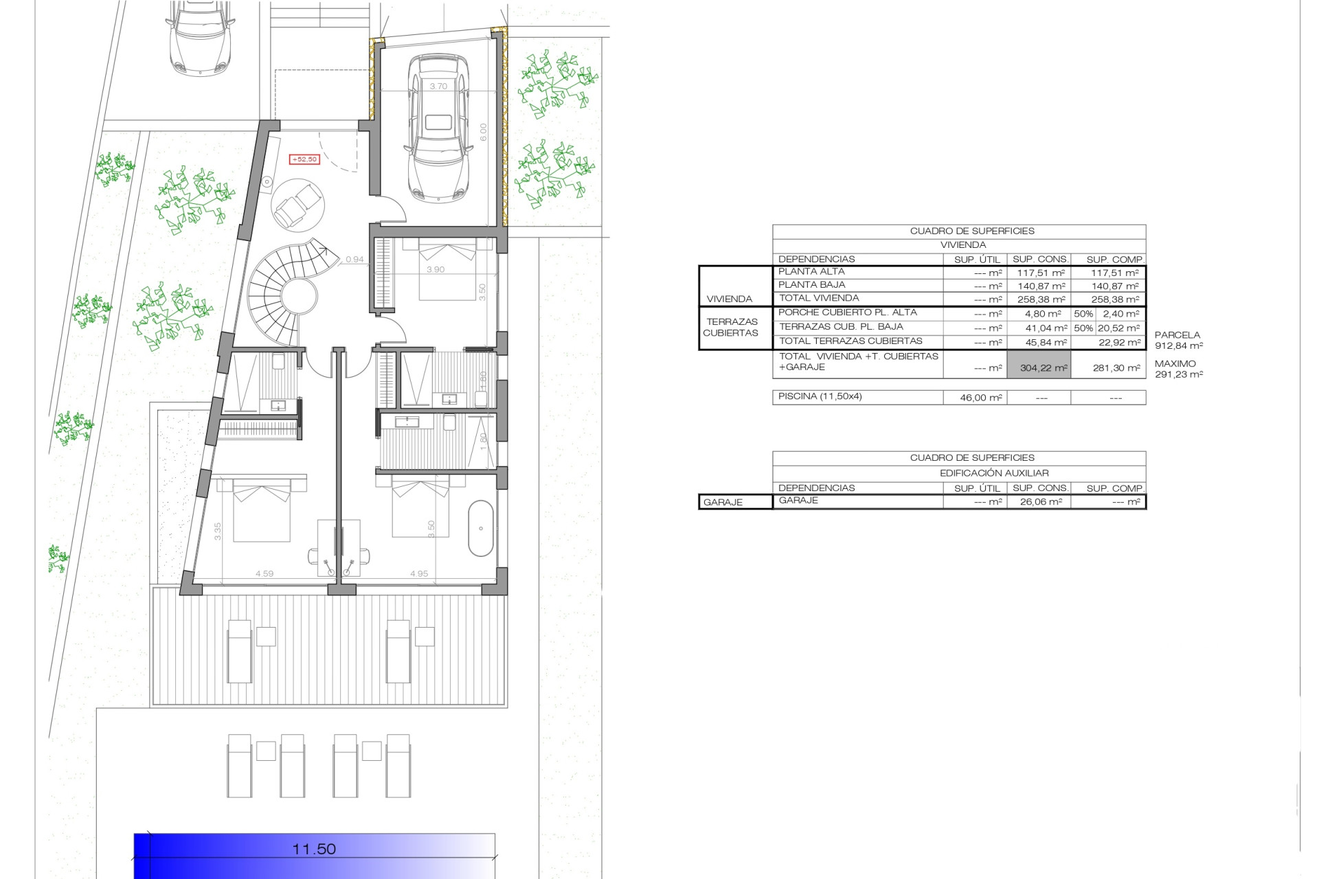
The villa is distributed over two floors, thoughtfully designed for comfort and functionality:
Upper Floor: The main entrance is on this level. Outside, there is a parking area and a private garage. Inside, there are three spacious bedrooms, each with its own en-suite bathroom. Two of the bedrooms also feature a private balcony with beautiful views.Lower Floor: A stylish spiral staircase leads to a large, bright living room with an open-plan kitchen and central island. This floor also includes a guest toilet, a cinema room, laundry room, and an additional bedroom with en-suite bathroom. Outside, a spectacular 11.5 x 4 m infinity pool blends with the spacious terrace and BBQ/chill-out area, offering panoramic views of the sea and the charming landscape of Moraira.Highlighted Extras
The villa is equipped with top-quality materials and luxury amenities, including:
Technal carpentry with safety glassFully equipped kitchen with Siemens appliancesBathrooms and fittings by the prestigious brand RocaLED lightingAerothermal system for hot water and underfloor heatingDucted air conditioning (hot/cold) throughoutPre-installation for solar panelsSolar panel for sanitary hot waterBuilt-in wardrobesElectric shuttersInterior alarm, pre-installation for exterior alarm and security camerasAnd much more!Contact us for more information about this exclusive villa built by GH Costa Blanca.
If you are looking for luxury, comfort, and modern living – this is the perfect home for you!