A
Entdecken Sie den Charme dieser spektakulären Luxusvilla, gelegen auf einem 912 m² großen Grundstück, strategisch in der Nähe der wunderschönen Strände und des Zentrums von Moraira. Diese Immobilie bietet ein unvergleichliches Wohnerlebnis mit modernem Design, Komfort und atemberaubendem Meerblick.
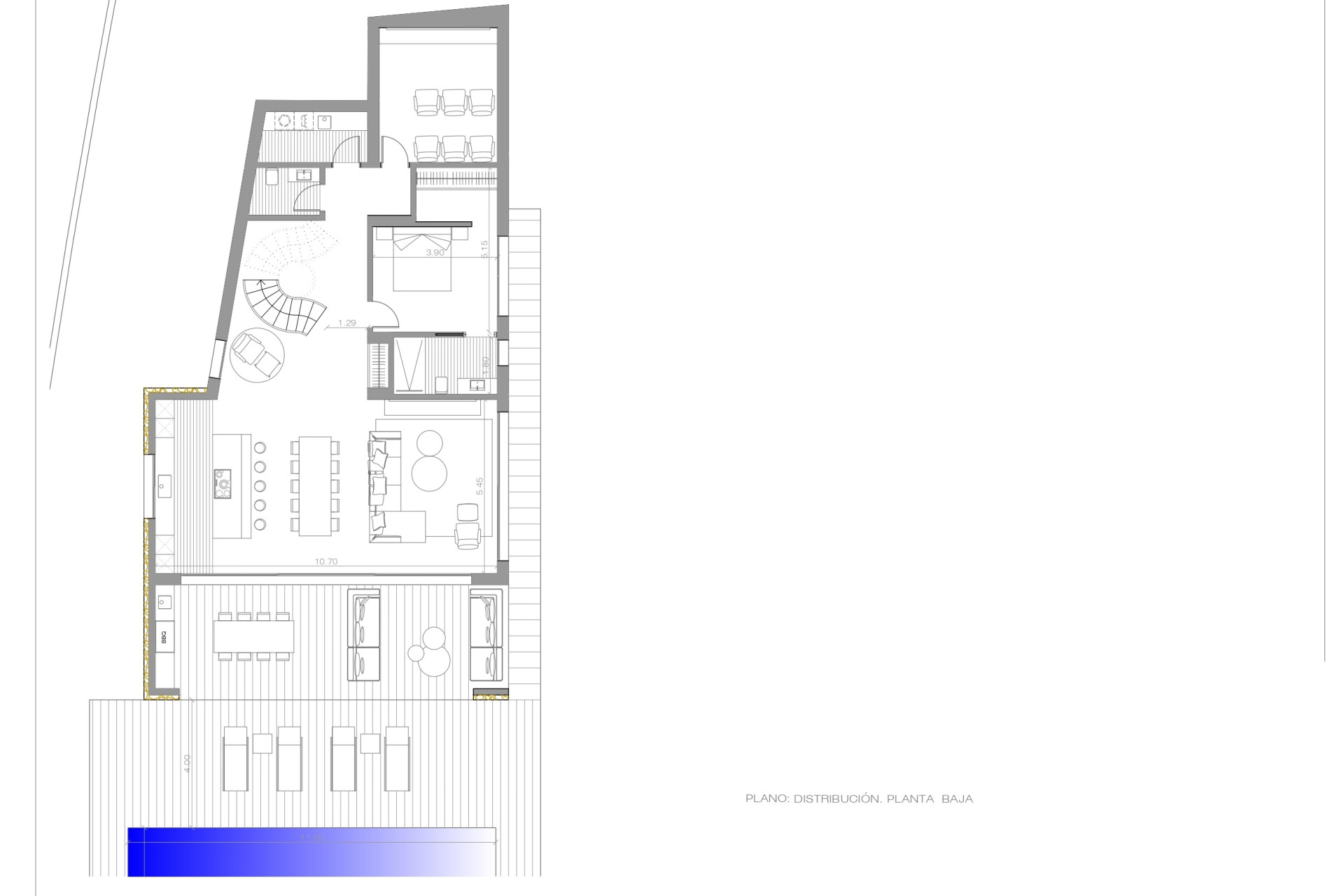
Aufteilung der Villa
Die Villa erstreckt sich über zwei Etagen und ist durchdacht gestaltet:
Obergeschoss:
Der Haupteingang befindet sich auf dieser Ebene. Draußen gibt es einen Parkplatz und eine Einzelgarage. Innen befinden sich drei großzügige Schlafzimmer, jeweils mit eigenem Bad en suite. Zwei der Schlafzimmer verfügen zudem über einen privaten Balkon mit herrlichem Ausblick.
Untergeschoss:
Eine elegante Wendeltreppe führt in ein geräumiges, helles Wohnzimmer mit offener Küche und Kochinsel. Auf dieser Etage gibt es außerdem ein Gäste-WC, ein Heimkino, einen Hauswirtschaftsraum und ein weiteres Schlafzimmer mit eigenem Bad.
Im Außenbereich lädt ein spektakulärer Infinity-Pool (11,5 x 4 m) mit großer Terrasse und BBQ-/Chill-out-Bereich zum Genießen der Aussicht auf das Meer und die Landschaft von Moraira ein.
Besondere Extras
Diese Villa ist mit hochwertigen Materialien und luxuriösen Ausstattungen versehen, darunter:
Technal-Fenster mit Sicherheitsglas
Voll ausgestattete Küche mit Siemens-Geräten
Bäder und Armaturen der renommierten Marke Roca
LED-Beleuchtung
Aerothermisches System für Warmwasser und Fußbodenheizung
Klimaanlage (warm/kalt) über Kanäle im gesamten Haus
Vorinstallation für Solarpaneele
Solarpanel für Brauchwasser
Einbauschränke
Elektrische Rollläden
Innenalarm, Vorinstallation für Außenalarm und Sicherheitskameras
Und vieles mehr!
Kontaktieren Sie uns für weitere Informationen über diese exklusive Villa, gebaut von GH Costa Blanca.
Wenn Sie Luxus, Komfort und modernes Wohnen suchen – ist dies das perfekte Zuhause für Sie!