A
Willkommen in dieser außergewöhnlichen Villa, die Eleganz, Qualität und Panoramablick auf das Meer vereint. Auf einem Grundstück von 1003 m² mit zwei Fußgänger- und Fahrzeugzugängen, darunter einer durch den Gemeinschaftsbereich der Urbanisation, bietet diese Immobilie einen exklusiven Lebensstil, nur wenige Gehminuten von den Stränden und dem Zentrum von Moraira entfernt.
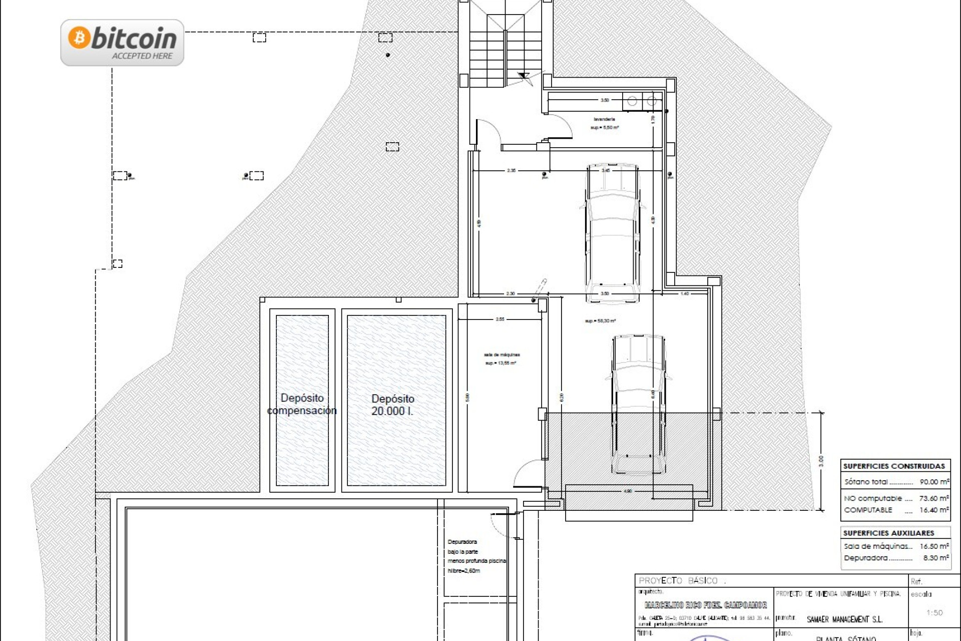
AUFTEILUNG DER VILLA:
Die Luxusvilla erstreckt sich über 3 Etagen und zeichnet sich durch beeindruckende Details und beste Qualitäten aus:
ERDGESCHOSS (147,30m²): Geräumiges helles Wohnzimmer neben der offenen Küche mit Insel, ein Gäste-WC und ein Schlafzimmer mit en-suite Bad. Im Außenbereich befindet sich der schillernde Infinity-Pool, der von einer geräumigen Terrasse und einem Grillplatz umgeben ist.
OBERGESCHOSS (133,65 m²): 3 geräumige Schlafzimmer, jedes mit eigenem Bad, bieten Privatsphäre und Komfort.
UNTERGESCHOSS: Es beherbergt eine Doppelgarage und eine Waschküche, die funktionalen und praktischen Raum bietet.
EXTRAS HIGHLIGHTS: Diese Villa bietet das Beste an Komfort und hochwertigen Ausstattungen. Von der Technal-Tischlerei mit Sicherheitsglas bis hin zu einer voll ausgestatteten Küche mit Siemens-Geräten und Badezimmern mit Roca-Armaturen wurde auf jedes Detail geachtet. Außerdem verfügt es über LED-Beleuchtung, ein aerothermisches System für Warmwasser und Fußbodenheizung sowie eine Klimaanlage im gesamten Haus,
Vorinstallation von Sonnenkollektoren. Solarpanel für Sanitärwasser, Einbauschränke, elektrische Jalousien und ein komplettes Sicherheitssystem mit Innenalarm, Vorinstallation von Außenalarm und Sicherheitskameras.
AUSSEN: Genießen Sie den Lebensstil im Freien mit einem 12x4,5 Meter großen rechteckigen Swimmingpool mit Überlaufsystem, einem 22m² großen Grillplatz, einer praktischen Waschküche und einem perfekt angelegten Garten. Automatische Zugangstore sorgen für Ihre Privatsphäre, während die Energieklasse A Effizienz und Nachhaltigkeit garantiert. Diese exklusive Villa ist Teil einer erlesenen Wohnanlage mit sechs modernen Residenzen, die jeweils über einen eigenen Parkplatz verfügen.
Diese majestätische Villa befindet sich auf Parzelle 2 und bietet eine unvergleichliche Gelegenheit für diejenigen, die höchste Lebensqualität in einer ruhigen und privilegierten Umgebung suchen.