A
Villa à Moraira
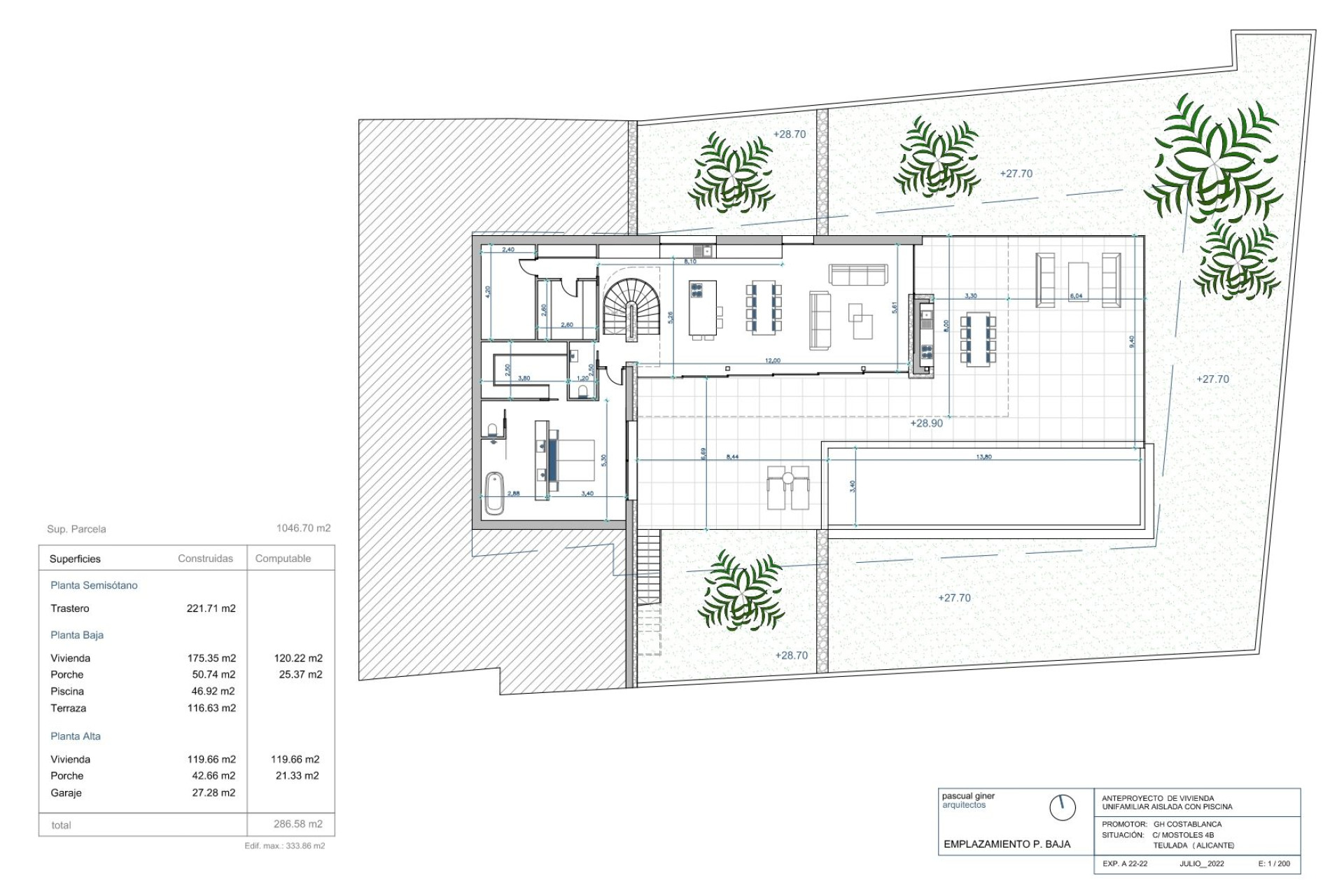
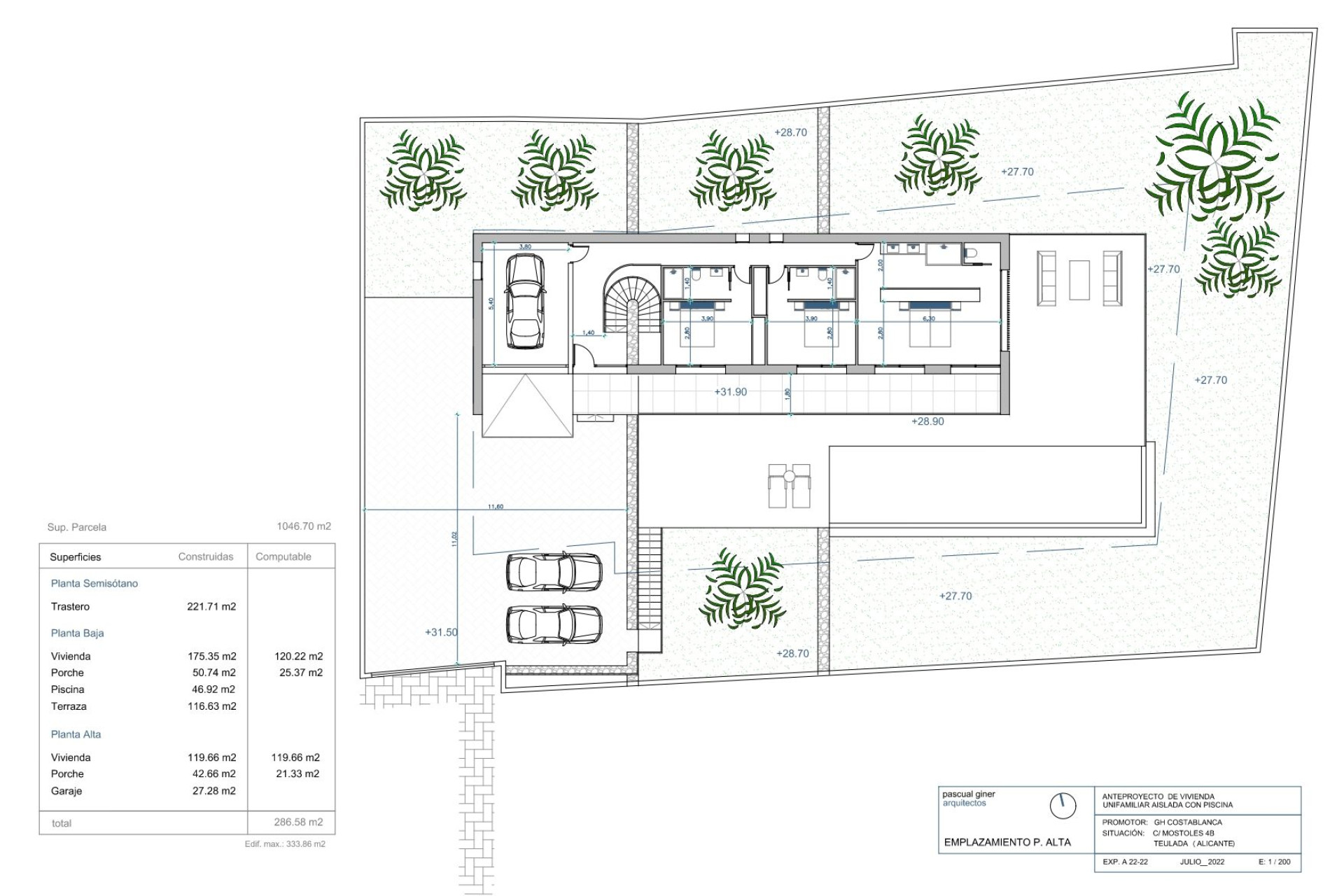
Découvrez le charme de cette magnifique villa de luxe, située sur un terrain de 1.046 m² avec deux accès piétons et véhicules, dont un par la zone commune de l’urbanisation. Idéalement située à quelques pas des belles plages et du centre de Moraira, cette propriété offre une expérience de vie exceptionnelle.
Disposition de la villa :
Cette villa, répartie sur 3 étages, se distingue par son design moderne et sa disposition astucieuse :
REZ-DE-CHAUSSÉE : Spacieux et lumineux salon attenant à une cuisine ouverte avec îlot, un WC invité et une chambre avec salle de bain en suite. À l’extérieur, une superbe piscine à débordement, entourée d’une vaste terrasse et d’un espace barbecue, crée une atmosphère parfaite pour recevoir.
ÉTAGE SUPÉRIEUR : 3 grandes chambres, chacune avec sa propre salle de bain en suite et un balcon privé pour profiter de la vue magnifique. À l’extérieur de cet étage se trouve le garage, offrant confort et espace pour votre véhicule.
SOUS-SOL : Comprend un grand espace de rangement de 221 m², ajoutant fonctionnalité et capacité de stockage.
Équipements remarquables :
La villa est équipée des meilleures qualités et de prestations de luxe, notamment :
Menuiseries Technal avec verre de sécuritéCuisine complète avec appareils SiemensSalles de bains et robinetterie complètes de la prestigieuse marque RocaÉclairage LEDSystème aérothermique pour eau chaude et chauffage au solClimatisation par conduits (chaud et froid) dans toute la maisonPré-installation de panneaux solairesPanneau solaire pour eau sanitairePlacards intégrésVolets roulants électriquesAlarme intérieure, pré-installation d’alarme extérieure et caméras de sécuritéExtérieurs et performance énergétique :
Piscine rectangulaire avec système à débordementEspace barbecueBuanderieJardin parfaitement aménagéPortails d’accès automatiquesClasse énergétique AOrientation sudCe projet fait partie d’un petit lotissement de six maisons modernes, chacune avec son propre parking.
Situé sur la parcelle 4, ce projet offre une opportunité unique à ceux qui recherchent une résidence de luxe dans un cadre exclusif et paisible.